NUOVI BILOCALI Maciacchini M3

180.000,00 

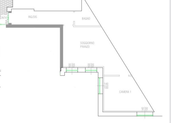
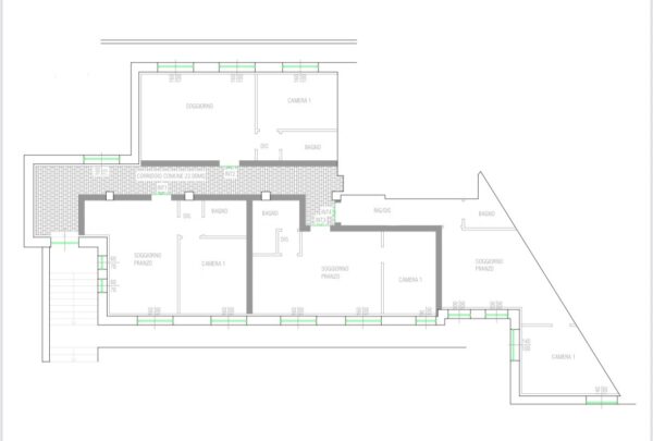
BILOCALI Nuova Costruzione Consegna Aprile 2026 ZONA MACIACCHINI.

Proponiamo in esclusiva 4 bilocali attualmente in “fase di costruzione” con consegna prevista Aprile 2026. Situati in zona strategica a pochi passi dalla MM3 Maciacchini/ Dergano, questi immobili sono dotati di accesso indipendente. Entrando nel comodo soggiorno, verremo subito accolti da un lussuoso parquet posato a spina in tutte le stanze. Attraversando il disimpegno, avremo accesso al bagno caratterizzato da finiture ricercate. Infine vi è la camera da letto che gode di assoluta tranquillità grazie al suo affaccio sul giardinetto condominiale. Riscaldamento e raffrescamento autonomi. Serramenti in doppiovetro pvc garantiranno tranquillità e mantenimento della temperatura. Perfetti come investimento grazie alla loro totale autonomia.

Questa descrizione ha valore puramente indicativo e non costituisce elemento contrattuale.